カーサクオーレ滝川 102号室
- たきかわ不動産

- 10月11日
- 読了時間: 1分
買い物が便利!一坪風呂!エアコン有!オール電化!
カーサクオーレ滝川 102号室
滝川市東町3丁目6-30
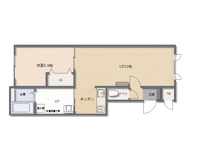
1LDK(LD11 K2.3 洋5.6)
44.43㎡
築年月2011年3月
2025年9月末頃退去予定
※お問い合わせ下さい。
家賃54,000円
駐車料:3,000円(2台目相談可)
水回り清掃料33,000円(契約時)
事務手数料:月額家賃の10%+消費税(契約時)
安心入居サポート:15,000円+消費税(契約時)
借家人賠償責任保険:加入必須
賃貸保証会社:加入必須
退去時費用:暖房器具点検整備料→1台につき25,000円(税別)
エアコン掃除料:設置の場合のみ15,000円(税別)
(設備)
システムキッチン・蓄熱暖房・IHコンロ・一坪風呂・温水洗浄便座
洗髪洗面化粧台・モニターホン・BSアンテナ・照明器具・下駄箱・トランクルーム
洗濯機置き場:室内・ネット使用料不要・エアコン


※間取りと画像は現況優先と致します。



























